當前位置:
MQHGTD系列卷揚機液控應急操作器
關鍵詞:應急操作裝置、應急操作設備、卷揚啓閉機應急操作器、無電啓門器、無電啓閘器、無電起閘器、無電應急裝置、MQHGTD、卷揚機液控應急操作器、水電站啓閉機應急操作器、HGTD無電液控、啓閉機應急、卷揚應急設備、應急卷揚起閘器、無電液控裝置、無電應急操作器、HL簡易離合器、SL手動離合器、MQHGTD卷揚式啓閉機無電液控應急操作器、應急啓閘器、應急起閘器、閘門應急操作器、卷揚啓閉機應急、卷揚式啓閉機應急、無電啓閉機應急、卷揚應急、閘門啓閉機應急、水電站閘門應急啓閉裝置
用途與特點
本産品是我公司引進國外先 進且成熟應用的技 術,并結合國 内工程的實際情況而研發的新型産品,已獲國 家 專 利 保護(專 利号:ZL2011100912742)。該産品廣 泛适用于水利、水電、河堤、圍墾、港口工程的卷揚機,作爲卷揚機的應急操作裝置。卷揚機電機正常工作時,手動離合器打開,本産品不影響卷揚機的正常工作;需要本産品應急操作時,手動離合器閉合即 可。
本産品是卷揚機在停電或電機失效的情況下,維持閉門功能的應急設備。與DLD系列便攜柴油機液壓泵站配合使用時,可實現卷揚機無電應急提 升、水平牽引功能。
一 次電源、二次電源、柴油發動機都是提供電源的裝置,都是通過電路啓閉閘門。而應急操作器不通過電路,在無電時啓閉閘門!!如遇到地震、台風、大雨、電路或電機故障,甚至電機失效時,應急操作器可在無電無電機時緊急啓閉閘門。
型号說明
如何選型:
在卷揚機電動機相應轉數下,根據功率(增容系數SF≥1.15)選取機座号,根據性能及轉向選取附加号,确定産品型号。
标準型功率選型參數表
型号
| 參考額定功率 (kw) (增容系數SF≥1.15) |
額定 轉速 (r/min) | 額定 扭矩 (N.m) |
重量 (Kg)
|
參考 用油量 (L) | 動力 單元 | |||
轉速 1500 | 轉速 1000 | 轉速 750 | 轉速 600 | ||||||
MQHGTD-10 | 5.4 | 3.6 | 2.7 | 1000 | 35 | 118 | 30~35 | DLD-10
| |
MQHGTD-20 | 19.8 | 13.2 | 9.9 | 500 | 127 | 127 | 50~60 | DLD-20
| |
MQHGTD-30 | 40.4 | 26.9 | 20.2 | 375 | 257 | 192 | 60~70 | ||
MQHGTD-40 | 81.6 | 54.4 | 40.8 | 32.6 | 176 | 520 | 257 | 70~80 | |
MQHGTD-50 | 119.0 | 79.3 | 59.5 | 47.6 | 160 | 758 | 290 | 90~100 | |
MQHGTD-60 | 144.0 | 96.0 | 72.0 | 57.6 | 133 | 917 | 310 | 90~100 | |
MQHGTD-70 | 208.5 | 139.0 | 104.3 | 83.4 | 117 | 1328 | 427 | 140~150 | |
MQHGTD-80 | 242.6 | 161.7 | 121.3 | 97.0 | 100 | 1545 | 448 | 140~150 | |
MQHGTD-90 | 293.4 | 195.6 | 146.7 | 117.4 | 82 | 1868 | 448 | 140~150 | |
MQHGTD-100 | 340.7 | 227.1 | 170.3 | 136.3 | 72 | 2169 | 512 | 230~245 | |
MQHGTD-110 | 427.7 | 285.1 | 213.8 | 171.1 | 57 | 2723 | 583 | 360~375 | |
MQHGTD-120 | 480.3 | 320.2 | 240.2 | 192.1 | 49 | 3058 | 782 | 560~570 | |
MQHGTD-130 | 651.6 | 434.4 | 325.8 | 260.6 | 36 | 4149 | 924 | 780~790 | |
MQHGTD-140 | 849.0 | 566.0 | 424.5 | 339.6 | 28 | 5406 | 924 | 780~790 | |
MQHGTD-150 | 987.0 | 658.0 | 493.5 | 394.8 | 24 | 6284 | 924 | 780~790 | |
MQHGTD-160 | 1211.3 | 807.5 | 605.6 | 484.5 | 19 | 7712 | 924 | 780~790 | |
更大型号均可定制 | |||||||||
單作用型功率選型參數表
型号
| 額定功率 (kw) (增容系數SF≥1.15) | 額定 扭矩 (N·m) | 額定 轉速 (r/min) | |||
轉速 1500 | 轉速 1000 | 轉速 750 | 轉速 600 | |||
MQHGTD-20D | 14.6 | 11.7 | 8.8 | 112.0 | 1000 | |
MQHGTD-30D | 18.5 | 14.8 | 11.1 | 142.0 | 750 | |
MQHGTD-40D | 23.3 | 18.6 | 14.0 | 178.0 | 750 | |
MQHGTD-50D | 29.3 | 23.4 | 17.6 | 224.0 | 750 | |
MQHGTD-60D | 37.0 | 29.6 | 22.2 | 282.0 | 750 | |
MQHGTD-70D | 37.2 | 27.9 | 356.0 | 750 | ||
MQHGTD-80D | 46.6 | 35.0 | 446.0 | 750 | ||
MQHGTD-90D | 58.3 | 43.7 | 557.0 | 750 | ||
MQHGTD-100D | 63.7 | 47.8 | 38.2 | 608.8 | 600 | |
MQHGTD-110D | 69.2 | 51.9 | 41.5 | 660.8 | 600 | |
MQHGTD-120D | 74.6 | 56.0 | 44.8 | 713.0 | 600 | |
MQHGTD-130D | 92.8 | 69.6 | 55.7 | 886.0 | 600 | |
MQHGTD-140D | 111.0 | 83.3 | 66.6 | 1059.0 | 600 | |
MQHGTD-150D | 135.5 | 101.6 | 81.3 | 1292.0 | 600 | |
MQHGTD-160D | 160.0 | 120.0 | 96.0 | 1525.0 | 600 | |
更大型号均可定制 | ||||||
注意事項
1、配置本産品時,卷揚機的制動器必須配有手動開閘功能。
2、本産品通過手動離合器與卷揚機電機後出軸或減速器的輸入軸相連。
3、啓閉機正常工作時,手動離合打開,本産品不影響啓閉機的正常工作;需要本産品應急操作時,手動離合器閉合即可。
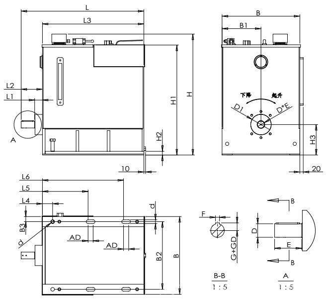
型号尺寸表

圖一:MQHGTD-10~MQHGTD-30/MQHGTD-20D~MQHGTD-160D
單位:mm
型号
| L | L1 | L2 | L3 | L4 | L5 | L6 | B | B1 | B2 | B3 | H | H1 | H2 | H3 | d | AD | D | E | D1 | F | G+GD |
MQHGTD-10 | 656 | 36 | 96 | 560 | 60 | 300 | 300 | 150 | 250 | 25 | 665 | 600 | 16 | 110 | 18 | 30 | 25 | 60 | 75 | 8 | 15.5 | |
MQHGTD-20 | 608 | 36 | 108 | 500 | 60 | 400 | 400 | 400 | 200 | 340 | 30 | 715 | 650 | 22 | 132 | 18 | 30 | 30 | 72 | 100 | 8 | 17.5 |
MQHGTD-30 | 726 | 46 | 126 | 600 | 60 | 270 | 480 | 460 | 230 | 400 | 30 | 715 | 650 | 22 | 180 | 22 | 30 | 40 | 80 | 120 | 12 | 22.8 |
單位:mm
型号 | L | L1 | L2 | L3 | L4 | L5 | L6 | B | B1 | B2 | B3 | H | H1 | H2 | H3 | d | AD | D | E | D1 | F | G+GD |
MQHGTD-20D | 608 | 36 | 108 | 500 | 60 | 400 | 400 | 400 | 200 | 340 | 30 | 715 | 650 | 22 | 132 | 18 | 30 | 30 | 72 | 100 | 8 | 17.5 |
MQHGTD-30D | 726 | 36 | 108 | 600 | 60 | 270 | 480 | 460 | 230 | 400 | 30 | 715 | 650 | 22 | 180 | 22 | 30 | 30 | 72 | 100 | 8 | 17.5 |
MQHGTD-40D | 764 | 32 | 84 | 680 | 60 | 310 | 560 | 460 | 230 | 400 | 30 | 715 | 650 | 30 | 225 | 22 | 30 | 30 | 52 | 100 | 8 | 17.5 |
MQHGTD-50D | 812 | 42 | 102 | 710 | 80 | 330 | 580 | 500 | 250 | 420 | 40 | 765 | 700 | 30 | 250 | 24 | 40 | 40 | 60 | 120 | 12 | 22.8 |
MQHGTD-60D | 882 | 42 | 102 | 780 | 80 | 360 | 640 | 500 | 250 | 420 | 40 | 765 | 700 | 30 | 280 | 24 | 40 | 40 | 60 | 120 | 12 | 22.8 |
MQHGTD-70D | 1092 | 32 | 92 | 1000 | 100 | 460 | 820 | 550 | 275 | 470 | 40 | 865 | 800 | 30 | 315 | 28 | 40 | 40 | 60 | 120 | 12 | 22.8 |
MQHGTD-80D | 1092 | 32 | 92 | 1000 | 100 | 460 | 820 | 550 | 275 | 470 | 40 | 865 | 800 | 30 | 315 | 28 | 40 | 40 | 60 | 120 | 12 | 22.8 |
MQHGTD-90D | 1092 | 32 | 92 | 1000 | 100 | 460 | 820 | 550 | 275 | 470 | 40 | 865 | 800 | 30 | 315 | 28 | 40 | 40 | 60 | 120 | 12 | 22.8 |
MQHGTD-100D | 1244 | 38 | 144 | 1100 | 100 | 500 | 900 | 600 | 300 | 520 | 40 | 865 | 800 | 39 | 355 | 28 | 60 | 55 | 106 | 150 | 16 | 31.5 |
MQHGTD-110D | 1244 | 38 | 144 | 1100 | 100 | 500 | 900 | 600 | 300 | 520 | 40 | 1065 | 1000 | 39 | 355 | 28 | 60 | 55 | 106 | 150 | 16 | 31.5 |
MQHGTD-120D | 1460 | 34 | 140 | 1320 | 120 | 580 | 1040 | 650 | 325 | 550 | 50 | 1165 | 1100 | 39 | 400 | 35 | 60 | 55 | 106 | 150 | 16 | 31.5 |
MQHGTD-130D | 1492 | 62 | 172 | 1320 | 120 | 580 | 1040 | 650 | 325 | 550 | 50 | 1315 | 1250 | 39 | 400 | 35 | 60 | 60 | 110 | 180 | 18 | 33.9 |
MQHGTD-140D | 1492 | 62 | 172 | 1320 | 120 | 580 | 1040 | 650 | 325 | 550 | 50 | 1415 | 1350 | 39 | 400 | 35 | 60 | 60 | 110 | 180 | 18 | 33.9 |
MQHGTD-150D | 1492 | 62 | 172 | 1320 | 120 | 580 | 1040 | 650 | 325 | 550 | 50 | 1465 | 1400 | 39 | 400 | 35 | 60 | 60 | 110 | 180 | 18 | 33.9 |
MQHGTD-160D | 1492 | 62 | 172 | 1320 | 120 | 580 | 1040 | 650 | 325 | 550 | 50 | 1465 | 1400 | 39 | 400 | 35 | 60 | 60 | 110 | 180 | 18 | 33.9 |

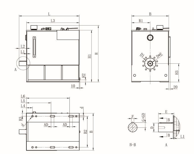
圖二:MQHGTD-40~MQHGTD-160
單位:mm
型号
| L | L1 | L2 | L3 | L4 | L5 | L6 | B | B1 | B2 | B3 | H | H1 | H2 | H3 | d | AD | D | E | D1 | F | G+GD |
MQHGTD-40 | 780 | -5 | 100 | 680 | 60 | 310 | 560 | 460 | 230 | 400 | 30 | 715 | 650 | 30 | 225 | 22 | 30 | 60 | 105 | 150 | 18 | 34 |
MQHGTD-50 | 810 | -5 | 100 | 710 | 80 | 330 | 580 | 500 | 250 | 420 | 40 | 765 | 700 | 30 | 250 | 24 | 40 | 60 | 105 | 150 | 18 | 34 |
MQHGTD-60 | 880 | -5 | 100 | 780 | 80 | 360 | 640 | 500 | 250 | 420 | 40 | 765 | 700 | 30 | 280 | 24 | 40 | 60 | 105 | 150 | 18 | 34 |
MQHGTD-70 | 1090 | -15 | 90 | 1000 | 100 | 460 | 820 | 550 | 275 | 470 | 40 | 865 | 800 | 30 | 315 | 28 | 40 | 60 | 105 | 150 | 18 | 34 |
MQHGTD-80 | 1090 | -15 | 90 | 1000 | 100 | 460 | 820 | 550 | 275 | 470 | 40 | 865 | 800 | 30 | 315 | 28 | 40 | 60 | 105 | 150 | 18 | 34 |
MQHGTD-90 | 1090 | -15 | 90 | 1000 | 100 | 460 | 820 | 550 | 275 | 470 | 40 | 865 | 800 | 30 | 315 | 28 | 40 | 60 | 105 | 150 | 18 | 34 |
MQHGTD-100 | 1184 | -21 | 84 | 1100 | 100 | 500 | 900 | 600 | 300 | 520 | 40 | 865 | 800 | 39 | 355 | 28 | 60 | 60 | 105 | 150 | 18 | 34 |
MQHGTD-110 | 1184 | -21 | 84 | 1100 | 100 | 500 | 900 | 600 | 300 | 520 | 40 | 1065 | 1000 | 39 | 355 | 28 | 60 | 60 | 105 | 150 | 18 | 34 |
MQHGTD-120 | 1400 | -25 | 80 | 1320 | 120 | 580 | 1040 | 650 | 325 | 550 | 50 | 1165 | 1100 | 39 | 400 | 35 | 60 | 60 | 105 | 150 | 18 | 34 |
MQHGTD-130 | 1400 | -25 | 80 | 1320 | 120 | 580 | 1040 | 650 | 325 | 550 | 50 | 1315 | 1250 | 39 | 400 | 35 | 60 | 60 | 105 | 150 | 18 | 34 |
MQHGTD-140 | 1486 | -4 | 166 | 1320 | 120 | 580 | 1040 | 650 | 325 | 550 | 50 | 1415 | 1350 | 39 | 400 | 35 | 60 | 90 | 170 | 230 | 25 | 50 |
MQHGTD-150 | 1486 | -4 | 166 | 1320 | 120 | 580 | 1040 | 650 | 325 | 550 | 50 | 1465 | 1400 | 39 | 400 | 35 | 60 | 90 | 170 | 230 | 25 | 50 |
MQHGTD-160 | 1486 | -4 | 166 | 1320 | 120 | 580 | 1040 | 650 | 325 | 550 | 50 | 1465 | 1400 | 39 | 400 | 35 | 60 | 90 | 170 | 230 | 25 | 50 |
如果你想要了解更多,請聯系我們 +86 10 80213104
QQ
