當前位置:
用途與特點
MQ QKD系列“自鎖式夾軌器” (以下簡稱夾軌器)是根據部分起重機的行走輪多、輪壓低、同時要求防風阻力大而研制的起重機防風設備。按動電源,夾軌器的夾軌鉗由動力源提起來,離開軌道一 定距離,此時起重機即 可正常作業;當起重機不工作時,隻要按動按扭,夾軌鉗即 可在重力作用下自動放下來,起重機左、右移動時,均可推動夾軌鉗上的偏心軸,使夾軌鉗扭轉夾住軌道,并且風力越大阻力越大,形成機械自鎖,從而達 到制動保護的效果。
型号說明

性能參數
型号 | 自重(kg) | 功率(W) | 防滑力(KN) | 電壓(V) | 動力源 |
MQQKD-A1 | 165 | 330 | 150 | 380 | 電動推杆 |
MQQKD-A3 | 140 | 330 | |||
MQQKD-B1 | 190 | 250/370 | 絲杆電機/液壓單元 | ||
MQQKD-C1 | 125 | 250 | 絲杆電機 | ||
MQQKD-C2 | 125 | 250 | |||
MQQKD-D2 | 130 | 250 |
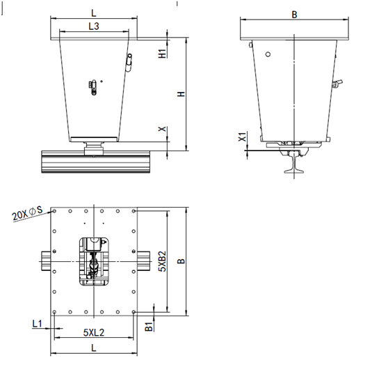
安裝圖數據表

單位:mm
型号 | L | L1 | L2 | L3 | B | B1 | B2 | H | H1 | X | X1 | S |
MQQKD-A1 | 550 | 25 | 100 | 450 | 590 | 45 | 100 | 680 | 16 | 60 | 25 | 18 |
MQQKD-A3 | 450 | 80 | 450 | 590 | 45 | 100 | 680 | 20 | 18 | |||
MQQKD-B1 | 600 | 110 | 500 | 750 | 25 | 140 | 780 | 20 | ||||
MQQKD-C1 | 450 | 80 | 350 | 650 | 25 | 120 | 400 | 18 | ||||
MQQKD-C2 | 450 | 80 | 350 | 550 | 25 | 100 | 500 | 18 | ||||
MQQKD-D2 | 450 | 80 | 350 | 750 | 25 | 140 | 400 | 18 |
如果你想要了解更多,請聯系我們 +86 10 80213104
QQ
